
All amenities are available for use by all of Birchview Garden's residents, and all amenities are completely wheelchair accessible.



Birchview Gardens Assisted Living is dedicated to enriching the lives of seniors by delivering exceptional care, outstanding value, and personalized support. Our welcoming environment is designed to foster health, independence, and meaningful social connection—creating a place where residents feel confident, cared for, and truly at home.

457 Sq Ft. of Living Area
Main & Upper Levels
Main Floor - 100, 101, 102, 103
Upper Floor - 200, 201, 202, 203, 204, 205, 206, 207
A Units Face East - 1 Window

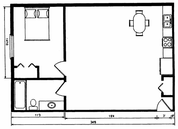
553 Sq Ft. of Living Area
Main & Upper Levels
Main Floor - 104, 105, 108
Upper Floor - 208, 209, 210
B Units Face North - 2 Windows

771 Sq Ft. of Living Area
Location: Upper Floor
215 - 1 Window Facing West
218 - 1 Window Facing East

862 Sq Ft. of Living Area
Location: Upper Floor
216 - 2 Windows Facing South
1 Window Facing West
217 - 2 Windows Facing South
1 Window Facing East

985 Sq Ft. of Living Area
Location: Lower, Main, and Upper Levels
Storage/Mechanical Room
All Units 2 Windows Facing West
Lower Floor - 003, 004, 005, 006 (Heated Floor)
Main Floor - 107, 108, 109, 110
Upper Floor - 211, 212, 213, 214

1121 Sq Ft. of Living Area
Location: Lower Level
001, 002, 007 (Heated Floor)
Master Bedroom Walk-In Closet
